top of page

Vila Ideal - PAC

Cliente: Domus Populi

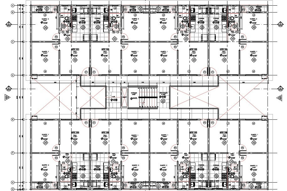
Escopo: Projetos Executivos para a fabricação e montagem de painéis e lajes Pré-fabricados em concreto, 5 Torres de 176 apartamentos.
Local: Duque de Caxias/RJ.

01-releitura camter.jpg
PLANTA ARQ.jpg
PLANTA PRODUÇÃO-DCX.jpg
01-releitura camter-02.jpg
01-releitura camter-01.jpg
CIMG1012.JPG
Bl-D.jpg
Bl-F.jpg
DSC00333.jpg
Bl-B (vista).jpg
SAM_1831.JPG
VI-01.jpg
vi.jpg
VI-03.jpg
VI-02.jpg
VI04.png
VI05.png
VI03.png
bottom of page